Проект 07-28

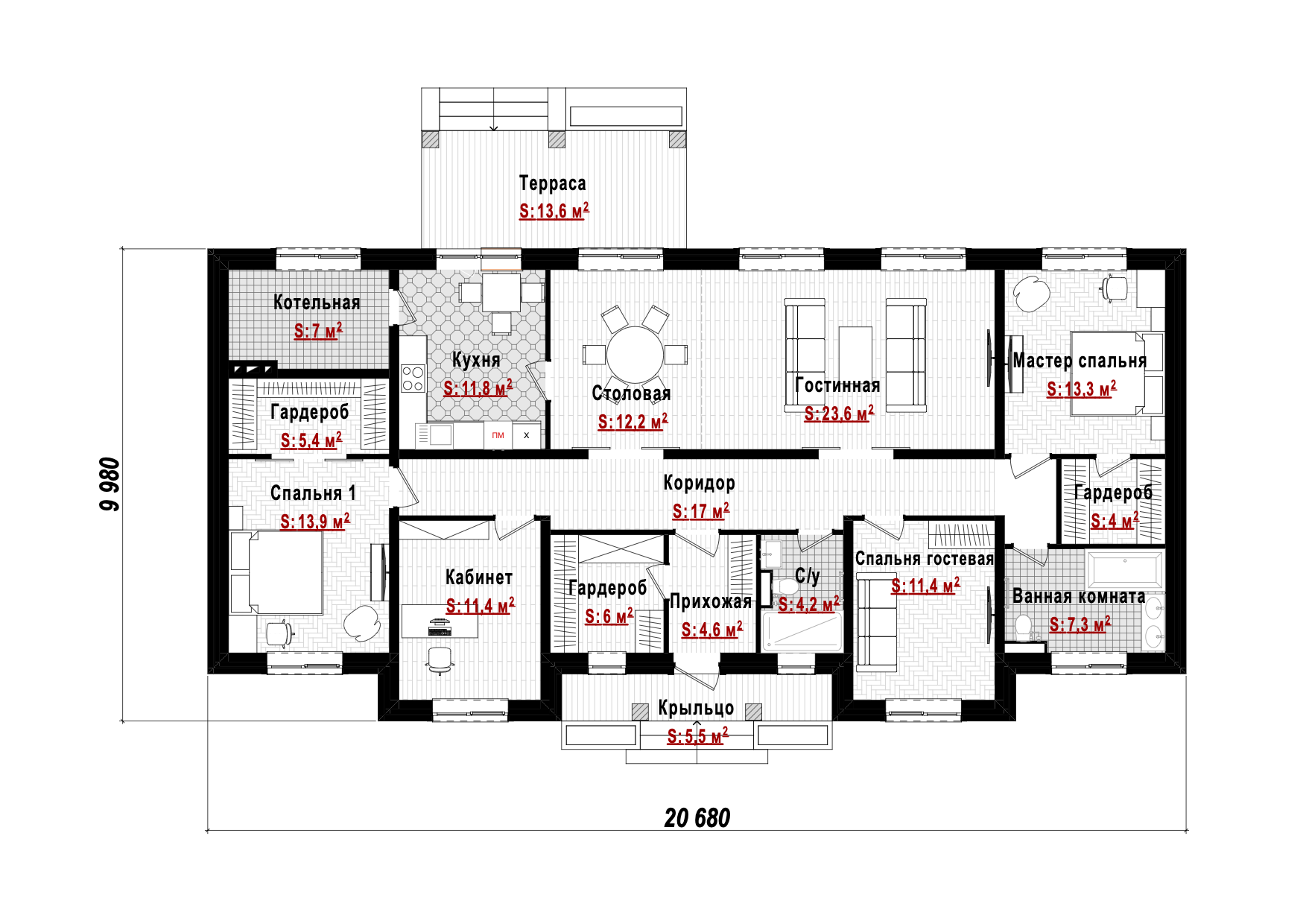
Проект одноэтажного дома 174,8 м2

20000

Купить
Ваш заказ
  • image alt
    POWER Full 14
    POWER Full 14
    1000
  • image alt
    POWER Full 14
    POWER Full 14
    2000
3000

Оставляя заявку, вы соглашаетесь на обработку персональных данных и с условиями бронирования счёта

2
Craftum Сайт создан на Craftum